Проектирование систем водоотведения для пищевых и промышленных объектов
GRENT разрабатывает решения для площадок, где важны стабильная работа инженерной части, чистота, удобство обслуживания и предсказуемый результат в эксплуатации. Мы проектируем системы для пищевых производств, складских комплексов, перерабатывающих предприятий, цехов, участков мойки, технических зон и объектов с высокой влажностью.
Грамотно подготовленный проект помогает заранее определить схему отвода воды, подобрать тип элементов, исключить слабые места на полу и в примыканиях, а также снизить риск переделок после монтажа. Такой подход особенно важен там, где нагрузка на покрытие и инженерные узлы выше средней, а требования к санитарии и безопасности нельзя оставлять на уровне компромисса.
Какие задачи решает проектирование водоотведения на объекте
Проектирование водоотведения позволяет еще на старте понять, как вода будет уходить с поверхности, где нужны лотки, трапы, трубы и узлы подключения, а где достаточно локальных решений. Это важно не только для новой стройки, но и для реконструкции существующего объекта.
Хорошо проработанная схема помогает:
- исключить застой воды, что уменьшит сырость;
- снизить риск скольжения и ускоренного износа покрытия;
- упростить уборку и санитарную обработку;
- сократить количество ошибок при монтаже;
- подготовить понятную базу для сметы, закупки и дальнейших работ.
Что входит в проектирование систем водоотведения
|
Подбор лотков, трапов и решеток |
На этом этапе определяется, какие элементы подойдут под конкретный режим эксплуатации: интенсивность потока, тип загрязнений, нагрузка на пол, требования к гигиене и удобству очистки. Подбор выполняется не по шаблону, а под реальную задачу объекта. |
|
Проработка схем водоотведения и узлов примыкания |
Мы формируем логику отвода воды по зонам, учитываем уклоны, точки сбора, переходы, повороты, места стыковки с полом и инженерными системами. Отдельное внимание уделяется примыканиям, потому что именно здесь часто возникают протечки, разрушение покрытия и сложности с обслуживанием. |
|
Подготовка спецификации и техническое сопровождение |
По итогам работы заказчик получает технический состав решений для объекта: перечень изделий, основные параметры, рекомендации по применению и данные, необходимые для дальнейшего согласования, закупки и реализации. |
Этапы проектирования систем водоотведения
Сбор исходных данных по объекту
На первом этапе анализируются планы, назначение зон, режим эксплуатации, требования к санитарии, наличие мокрых процессов, тип покрытия и особенности монтажа. Чем точнее исходные данные, тем выше точность будущего решения.
Анализ условий эксплуатации и подбор решений
После изучения объекта подбирается подходящая конфигурация: определяется схема отвода воды, тип изделий, их размещение, пропускная способность и конструктивные особенности. Здесь важно не просто “поставить лоток”, а понять, как система будет работать ежедневно.
Согласование и сопровождение проекта
После подготовки решения мы уточняем детали с заказчиком, проектировщиком или подрядчиком, вносим необходимые корректировки и сопровождаем проект до этапа, когда его можно передавать в работу.
Что нужно для заказа проектирования водоотведения
Чтобы начать работу, обычно достаточно базового набора данных:
- плана объекта или участка;
- технического задания;
- информации о мокрых зонах и источниках сброса воды;
- понимания типа объекта и режима эксплуатации;
- требований к материалам необходимых изделий, санитарии и нагрузкам.
Преимущества проектирования систем водоотведения в GRENT
GRENT сочетает инженерный подход и практическое понимание того, как система будет работать уже после монтажа. Для заказчика это означает не просто комплект изделий, а решение, которое учитывает реальные условия эксплуатации.
Подбор под конкретный объект
Конфигурация формируется под реальную площадку, а не под общий шаблон.
Снижение риска ошибок
Проработка решений заранее помогает избежать проблем на этапе реализации.
Удобство очистки и обслуживания
В проект закладываются решения, которые упрощают эксплуатацию системы.
Быстрое согласование
Рабочие решения можно оперативно согласовать с участниками проекта.
Адаптация под нестандартные задачи
При необходимости проект корректируется под особенности конкретного объекта.
BIM-модели и поддержка проектировщиков
GRENT предоставляет BIM-модели и рабочие чертежи изделий, чтобы проектировщики могли быстрее закладывать системы водоотведения в документацию и согласовывать решения без лишних доработок. Это особенно важно для объектов, где требуется точная интеграция инженерных элементов в общую архитектурную и технологическую схему.
В BIM-библиотеках представлены трапы, лотки, решетки, ревизии и другие элементы в разных конфигурациях. Такие цифровые материалы помогают проверить совместимость, сократить количество коллизий и ускорить подготовку проекта.
Применение систем GRENT в проектах
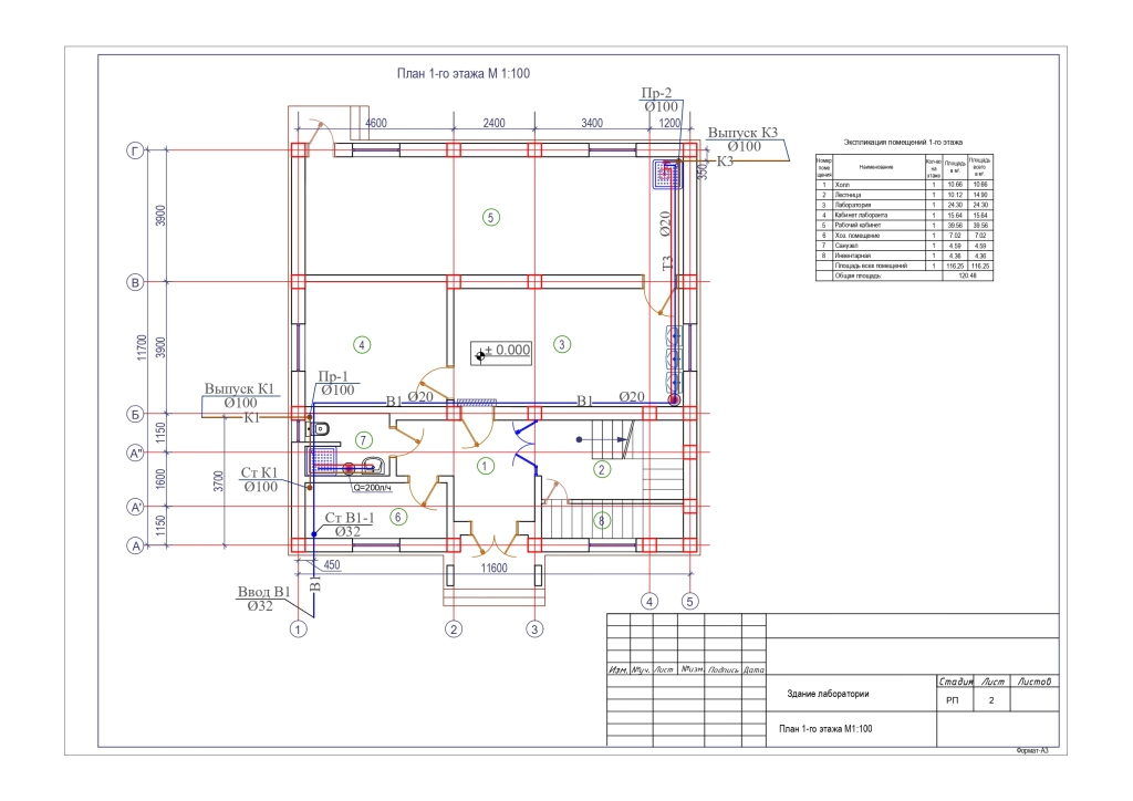
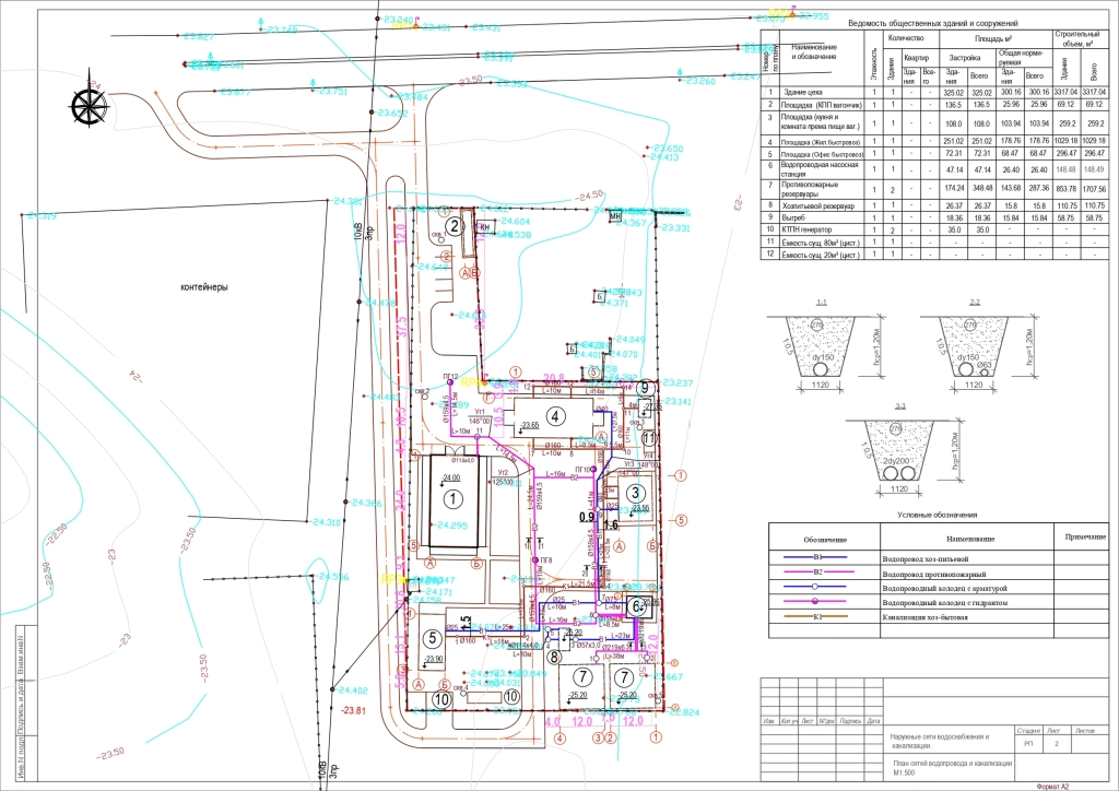
Примеры проектов систем водоотведения
Стоимость проектирования систем водоотведения
Стоимость и сроки проекта дренажа участка или ливневой канализации зависят от типа объекта, площади, количества зон, состава работ и требований заказчика. Цена рассчитывается после изучения исходных данных и ТЗ. На итоговую сумму влияют сложность схемы, необходимость нестандартных решений, состав документации и объем технического сопровождения.
Если нужен проект дренажа и ливневой канализации в комплексе или проект по водоотведению для производственной площадки, специалисты GRENT помогут определить оптимальный состав работ и сроки подготовки.
Часто задаваемые вопросы о проектировании водоотведения
Нужно ли проектировать лоток вдоль отмостки?
Да, если вдоль здания регулярно скапливается вода, есть уклон к стене, подмывается основание или требуется организованный сбор осадков. Лоток вдоль отмостки нужен не “по умолчанию”, а там, где это подтверждается планировкой и режимом эксплуатации. Решение принимают после анализа участка, покрытия и направления стока.
Как рассчитывается диаметр водопропускных труб ливневой канализации?
Диаметр определяется не по “среднему значению”, а по расчетному объему стока. Учитываются площадь водосбора, интенсивность осадков, уклоны, длина трассы, количество точек подключения и предполагаемая скорость движения воды. Если диаметр трубы выбран неправильно, то система либо не справится с потоком, либо окажется экономически неоправданной.
Заказать проектирование систем водоотведения
Если вам нужен проект дренажной системы, ливневки, чертеж ливневой канализации или решение для производственной канализации объекта, команда GRENT поможет подобрать оптимальный формат работы. Мы учитываем ТЗ, особенности площадки, режим эксплуатации и требования к срокам.
Оставьте заявку, чтобы обсудить задачу, получить консультацию и понять, какое решение будет рациональным именно для вашего объекта.
Партнёрская программа GRENT для проектировщиков и дизайнеров
Мы приглашаем к сотрудничеству проектные организации, архитекторов и дизайнеров:
- предоставляем BIM-библиотеки и чертежи;
- консультируем по техническим вопросам и монтажу;
- разрабатываем нестандартные инженерные решения;
- обеспечиваем оперативное изготовление изделий под проект.
